Balliol Gardens, Evesham, WR11

2 bedroom House Sold STC

£260,000

  • 2 bedroom
  • 1 bathroom
  • 1 reception

Key Features

  • Modern and stylish two-bedroom home, conveniently located near the southern edge of Evesham
  • Enclosed gardens, including lawn, patio and a gravelled seating area to the rear
  • Off-road driveway parking for two vehicles to the front
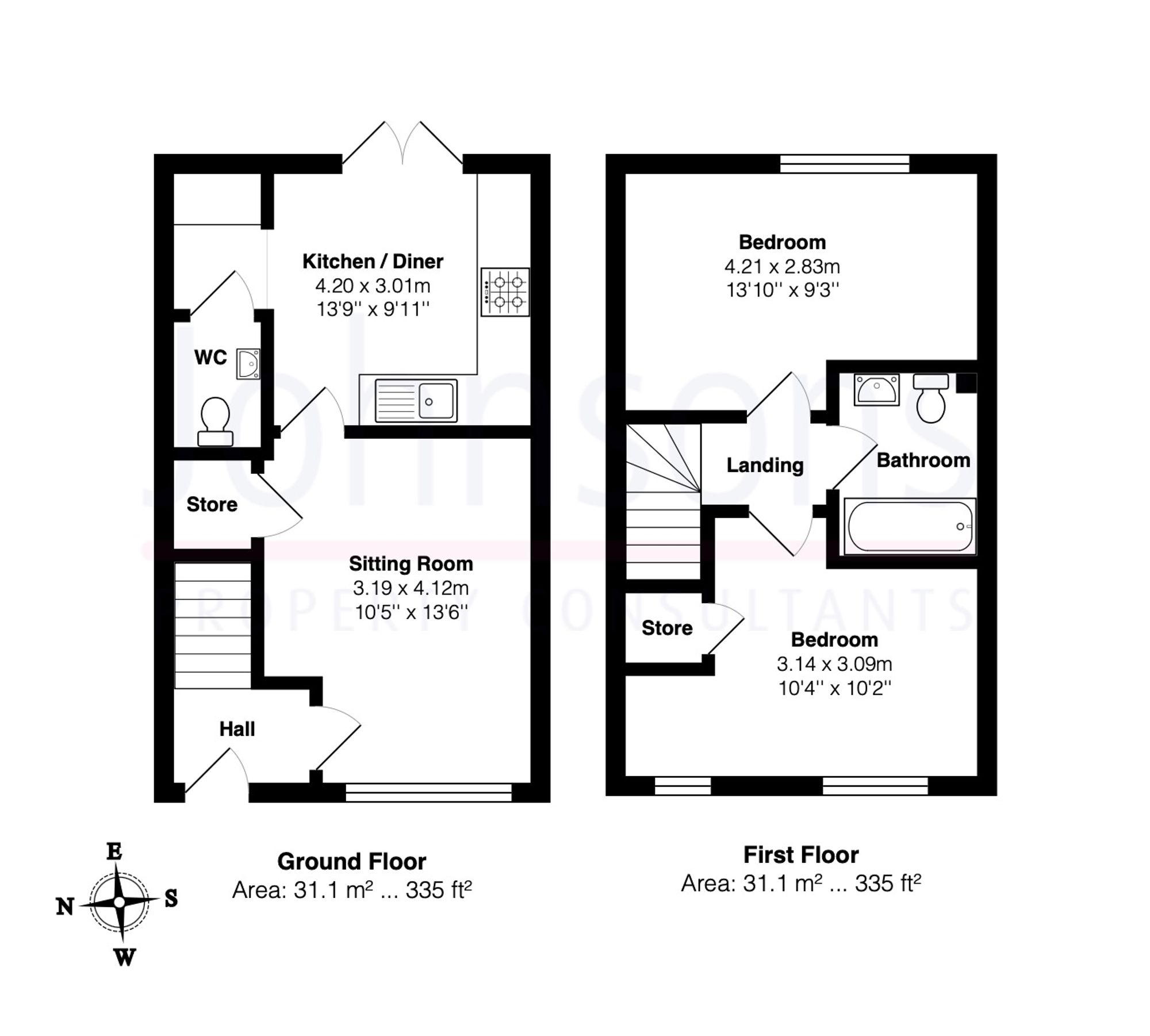
  • Sitting room with wood effect flooring, under stairs store, and a large window overlooking the front
  • Kitchen/ diner with a range of contemporary fitted units, LED lighting, integrated cooker, hob and extractor hood, and spaces for appliances. Patio doors opening onto the rear patio and gardens
  • Two well-proportioned double bedrooms and a bathroom with a white suite comprising bath with shower over, basin and W.C.

Description

Stylish Modern Living with Private Gardens and Parking - A Perfect First Home or Investment

Conveniently located on the southern edge of Evesham, this smart and beautifully presented two-bedroom end-of-terrace home offers the perfect blend of modern comfort, practical living space, and low-maintenance outdoor areas; ideal for first-time buyers, downsizers or investors alike. With off-road parking for two vehicles and an enclosed rear garden designed for relaxing and entertaining, 80 Balliol Gardens provides a welcoming and well-balanced home in a convenient residential setting.

The property is entered via a bright entrance hall with staircase rising to the first floor. From here, the sitting room offers an inviting and comfortable living space, enhanced by wood-effect flooring and a large front-facing window that allows natural light to pour in throughout the day. A useful under-stairs storage cupboard adds practicality while maintaining the clean, modern feel of the room.

To the rear of the property, the kitchen/ diner forms the heart of the home; a contemporary and functional space fitted with a range of sleek cupboard units complemented by LED lighting and integrated cooking appliances including an oven, hob and extractor hood. There is ample space for everyday dining, while patio doors open directly onto the rear patio and gardens, creating a seamless connection between indoor and outdoor living.

A separate utility area provides additional space for appliances and household storage, together with the added convenience of an adjoining cloakroom/ W.C.

Upstairs, the first-floor landing leads to two generously proportioned double bedrooms, each offering comfortable accommodation with plenty of room for bedroom furniture. The bathroom is fitted with a clean and modern white suite, comprising a bath with shower over, wash basin and W.C.

Outside, the enclosed rear garden has been thoughtfully arranged to provide a mix of spaces for relaxation and enjoyment. A paved patio sits directly outside the kitchen doors, perfect for morning coffee or summer dining, leading onto a lawn and a gravelled seating area ideal for entertaining or unwinding at the end of the day.

To the front of the property, a private driveway provides off-road parking for two vehicles.

Conveniently positioned for local amenities, schools and transport links, while also being within easy reach of Evesham’s historic riverside town centre, this attractive home represents an excellent opportunity to secure a modern, low-maintenance property in a well-connected location.

Early viewing is strongly recommended to appreciate all that this delightful home has to offer.

About the area

Evesham is a market town situated ideally just north of the Cotswolds, a protected landscape, and Area of Outstanding Natural Beauty. Evesham itself provides a wealth of amenities, schools, performing arts venues, community events and good commuting access. This property enjoys an enviable location, situated close enough to the town centre to benefit from amenities but with ease of access onto the A44 or A46 roads.

The Vale of Evesham is well-known for its fruit and vegetable growing, with annual asparagus sales and plum festivals as well its medieval heritage, commemorated by the ever growing and popular Battle of Evesham event that takes place in August each year. Evesham is home to an independent cinema, a choice of arts venues offering regular live shows and a good choice of independent and chain retail stores, public houses and eateries. For the sporting orientated, there are a great selection of clubs including a rowing club which has had a famous Olympic athlete oar their way to success from! There are numerous clubs to get involved with to suit every hobby or future professional!

There is good access to healthcare, with four GP surgeries that cover the area and a minor injuries unit located in the centre. There are local pharmacies and dentists that also provide good service to the area.

For the commuters, Evesham has a train station located centrally that provides great direct access to the nearby city of Worcester or through to London (Paddington). There are regular bus routes through to the surrounding villages, within Evesham or a further afield to nearby towns such as Stratford upon Avon or Redditch.

Important information

Planning enquires concerning the property and surrounding area can be made with Wychavon District Council.

Environmental enquires concerning the property and surrounding area can be made with the Environment Agency.

Broadband inquiries at the property concerning its availability and estimated strength and download speeds can be made with BT.

Misrepresentation Act: These particulars are prepared with care but are not guaranteed and do not constitute, or constitute part of, any offer or contract. Intending purchasers must satisfy themselves of these particulars’ accuracy by inspection or otherwise, since neither the seller nor Johnsons shall be responsible for statements or representations made. The seller does not make or give, and neither Johnsons nor any person in their employment, has any authority to make or give any representation or warranty in relation to this property.

We endeavour to make the sales details accurate, if there is any matter(s) that is particularly important to you, please check with us prior to travelling any distance to view the property. Johnsons are unable to comment on the state of repair or condition of the property or confirm that any services equipment or appliances are in satisfactory working order. Reference to tenure is based upon information supplied by the vendor. Fixtures and fittings not included.

Johnsons Property Consultants reserve the right to earn a referral fee from third party providers, if instructed.


Location

Location



Floorplan

Floorplan

EPC

EPC for Balliol Gardens, Evesham, WR11

Johnsons Property Consultants

91 High St, Evesham, WR11 4DN

Similar Properties

Salisbury Drive, Evesham, WR11
Sold STC

Salisbury Drive, Evesham, WR11

2 Bed Bungalow Sold STC
Guide Price £250,000
Glebe Cottages, Harvington, WR11
For Sale

Glebe Cottages, Harvington, WR11

3 Bed House For Sale
Guide Price £290,000
School Road, Salford Priors, WR11
For Sale

School Road, Salford Priors, WR11

3 Bed House For Sale
Guide Price £350,000