Tulip Drive, Evesham, WR11

3 bedroom House Sold STC

£250,000

  • 3 bedroom
  • 1 bathroom
  • 1 reception

Key Features

  • A modern home, located conveniently close to the edge of Evesham and within easy reach of the A46
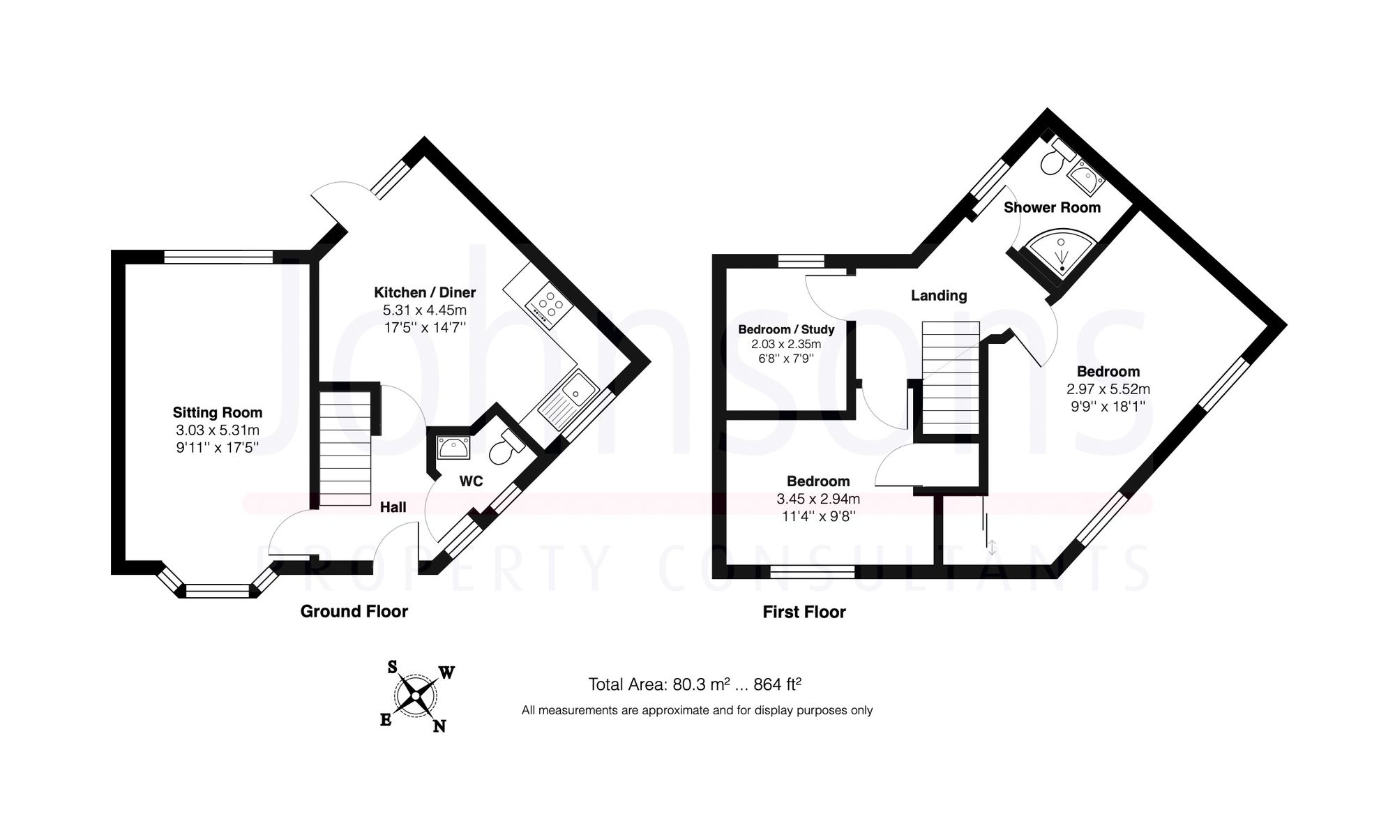
  • Ground floor accommodation comprising a modern kitchen/ diner, sitting room and cloakroom/ W.C.
  • Upstairs, the landing leads to three bedrooms and a shower room
  • Front and rear gardens, incorporating lawns, paved areas and a garden shed
  • Allocated off-road parking for two cars to the rear
  • An ideal first time buyer or buy-to-let opportunity
  • No onward chain

Description

Situated in an enviable position close to the edge of Evesham, 2 Tulip Drive presents a superb opportunity to acquire a modern, well-proportioned three-bedroom home ideally suited to first-time buyers and buy-to-let investors alike. Offered to the market with the significant advantage of no onward chain, this attractive home is ready to move into.

On the ground floor, a modern kitchen/ diner forms the heart of the home, offering an inviting, sociable space, ideal for everyday meals or entertaining friends. The sitting room provides a comfortable retreat, bathed in natural light and perfectly proportioned for relaxed evenings, while a convenient cloakroom/ W.C. completes the ground floor layout.

Upstairs, the first-floor landing leads to three well-sized bedrooms, offering flexibility for family living, home working or guest accommodation. These are served by a stylish shower room.

Both front and rear gardens are laid predominantly to lawn, complemented by paved areas ideal for outdoor seating, along with a useful garden shed. To the rear, allocated off-road parking for two vehicles adds further appeal and convenience.

The location is a particular highlight; within easy reach of Evesham town centre amenities while offering swift access to the A46 for commuters. With its modern specification, excellent connectivity and chain-free status, this is a property that demands early attention.

About the Area

Evesham is a market town situated ideally just north of the Cotswolds, a protected landscape, and Area of Outstanding Natural Beauty. Evesham itself provides a wealth of amenities, schools, performing arts venues, community events and good commuting access. This property enjoys an enviable location, situated close enough to the town centre to benefit from amenities but with ease of access onto the A44 or A46 roads.

The Vale of Evesham is well-known for its fruit and vegetable growing, with annual asparagus sales and plum festivals as well its medieval heritage, commemorated by the ever growing and popular Battle of Evesham event that takes place in August each year. Evesham is home to an independent cinema, a choice of arts venues offering regular live shows and a good choice of independent and chain retail stores, public houses and eateries. For the sporting orientated, there are a great selection of clubs including a rowing club which has had a famous Olympic athlete oar their way to success from! There are numerous clubs to get involved with to suit every hobby or future professional!

There is good access to healthcare, with four GP surgeries that cover the area and a minor injuries unit located in the centre. There are local pharmacies and dentists that also provide good service to the area.

For the commuters, Evesham has a railway station located centrally that provides great direct access to the nearby city of Worcester or through to London (Paddington). There are regular bus routes through to the surrounding villages, within Evesham or a further afield to nearby towns such as Stratford upon Avon or Redditch.

Important Notes

Please note that internal virtual staging has been applied to some of the photographs on this listing, to demonstrate how the property could look when fully furnished.

Planning enquires concerning the property and surrounding area can be made with Wychavon District Council.

Environmental enquires concerning the property and surrounding area can be made with Environment Agency.

Broadband inquiries at the property concerning its availability and estimated strength and download speeds can be made with BT.

Misrepresentation Act: These particulars are prepared with care but are not guaranteed and do not constitute, or constitute part of, any offer or contract. Intending purchasers must satisfy themselves of these particulars’ accuracy by inspection or otherwise, since neither the seller nor Johnsons shall be responsible for statements or representations made. The seller does not make or give, and neither Johnsons nor any person in their employment, has any authority to make or give any representation or warranty in relation to this property.

We endeavour to make the sales details accurate, if there is any matter(s) that is particularly important to you, please check with us prior to travelling any distance to view the property. Johnsons are unable to comment on the state of repair or condition of the property or confirm that any services equipment or appliances are in satisfactory working order. Reference to tenure is based upon information supplied by the vendor. Fixtures and fittings not included but some are available, subject to agreement.

Johnsons Property Consultants reserve the right to earn a referral fee from third party providers, if instructed.


Location

Location



Floorplan

Floorplan

EPC

EPC for Tulip Drive, Evesham, WR11

Johnsons Property Consultants

91 High St, Evesham, WR11 4DN

Similar Properties

Salisbury Drive, Evesham, WR11
Sold STC

Salisbury Drive, Evesham, WR11

2 Bed Bungalow Sold STC
Guide Price £250,000
Glebe Cottages, Harvington, WR11
For Sale

Glebe Cottages, Harvington, WR11

3 Bed House For Sale
Guide Price £290,000
Shepherds Pool, Evesham, WR11
For Sale

Shepherds Pool, Evesham, WR11

1 Bed Flat For Sale
Guide Price £105,000